Zum Inhalt springen
Hauptmenü
Start
Immobilien
Für Eigentümer
Immobilie verkaufen
Immobilie vermieten
Immobilienbewertung
Referenzen
Unternehmen
Aktuelles
Kontakt
Haus zum Kauf in Bremen
Wohn- und Geschäftshaus in zentraler Lage
Bilder anzeigen (12)
589.000 €
Kaufpreis
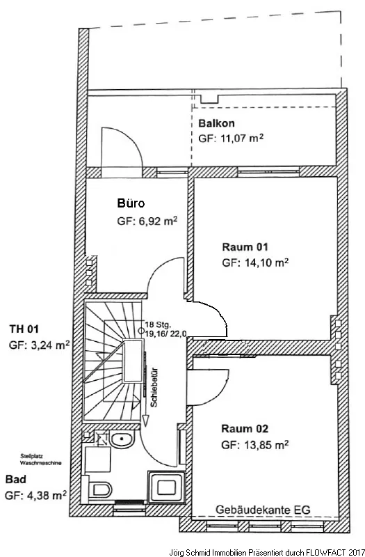
136 m²
Wohnfläche (ca.)
6,50
Zimmer
80 m²
Grundstück (ca.)
92 m²
Nutzfläche (ca.)
Preise & Kosten
Standort
28203 Bremen
Preise
Kaufpreis
589.000 €
Käuferprovision inkl. USt.
2,98%
Die Immobilie
Haus zum Kauf
Objekt-Nr
2433
Baujahr
1912
Unterkellert
Ja
Heizungsart
Etagenheizung
Vermietet
Räume und Flure
Anzahl Badezimmer
3
Ihre Anfrage